回应模式 - No.55990129


No.55990129 - 跑团


无标题无名氏No.55990129 返回主串

2023-03-05(日)11:17:57 ID:26NXFoz 回应

你,被选中去拍恐怖电影(´゚Д゚`)
不是现实中的电影,而是……真正有鬼存在的电影。
你的名字是
839[0,1000]

无标题无名氏No.56537436

2023-03-31(五)12:39:48 ID: 26NXFoz (PO主)

第一幕的剧本,也在你脑海里展开。第一幕的剧情很简短,就是你参加了狼人古堡之旅后,组团前往狼人古堡。大部分行为,都是红字,不过有几点很值得在意。
剧本,用红字规定了规则:
本部电影ng回溯时长:一小时
本部电影中,演员不得脱下古堡准备的服装道具,全程须隐藏面容身份,使用物品暗示等行为也包括在内,否则视为违背影院规则。但是,此条规则,不针对剧本信息和诅咒之物。
本部电影为影院的一次特殊尝试,从第二幕起,电影拍摄过程中,剧本将实时发送到演员脑海。剧本量,将大大减少,只为拍摄演员最真实的反应。
在狼人古堡成功存活三天后,演员即可回归影院。
这次的电影,实在是很特别,你觉得与其说是电影拍摄,不如说……更像是一档综艺。
报名了“狼人古堡之旅”后,也就进入了剧本空白期。
这期间你决定
1、 去踩个点
2、 好好休息养精蓄锐
3、 查查古堡的资料
4、 自定义

无标题无名氏No.56540857

2023-03-31(五)16:17:30 ID: 26NXFoz (PO主)

你上网查了查这个狼人古堡的资料,本市的狼人古堡,由著名建筑设计师纪平成设计,位于你所在市最高的狼头山顶。设计者纪平成,在古堡建成之日,就自杀了。
除此之外,居然全网再也查不到任何信息,设计者在建成之日自杀这么离奇的事,也就是一笔带过,好像根本不是什么大事一般。
巧的是,他自杀的日子,正是你们入住古堡的那一日。这一切,不可能是单纯的巧合。难道狼人古堡里徘徊的鬼魂,就是这个设计师的冤魂?
你也想找个探灵主播过来探探虚实,但是离你最近的探灵主播,也是在隔壁市,要过来还要准备,至少也是明天晚上的事了。你也想花大价钱让他直接过来,可是毕竟要考虑到ng因素,你没道理为了一个探灵主播,花这么多钱。
本身这个狼人古堡之旅,就很诡异了。你们扮演的角色,恐怕也是受到了某种特殊力量的影响,否则这么一个只有一张图片,介绍寥寥几句的活动,怎么会毫不犹豫的就报名了?
这一觉,你睡得并不安宁。
第二天,一个陌生的电话打进了你的手机。
“您好,请问是唐霆禹先生吗?”话筒里,传来一个甜美的女声。
“没错,是我。你是……”
“我是狼人古堡之旅的负责人,您可以叫我小蜗。根据您填写的地址,我们公司的班车已经到达您家楼下了。本次古堡之行有特殊的保密规则,同时也是一场独具匠心的角色扮演之旅。服装道具我们都已经准备好了,您到时候在我们的更衣室内换装完毕后,就可以进入古堡,享受这场奇幻之行了。如果您准备好的话就可以下楼,我们随时可以出发。”
你本以为会是那种旅行大巴车,没想到派来的是一辆黑色的小轿车,还真是专车接送。看来在到达古堡之前,影院是不会让演员们提前碰面了。
你从车窗看出去,从这里,能勉强看到所谓的狼头山,和狼人古堡。晴朗的蓝天下,只能看见古堡一个小小的影子,悠远、闲适,看起来反而真有几分旅游胜地的样子。
随着车子逐渐攀高,天气也渐渐阴沉起来,等你到达古堡的门口,天空已经是阴云密布。恐怖的气氛,已经悄然酝酿开来。
“欢迎您,唐霆禹先生。”
一个穿着侍者服饰,头戴白色面具的人站在古堡门口向你示意。
“你就是……小蜗?”
“是的,唐先生,请您跟我来,先进行换装,再进入古堡。”
你站在更衣室里,戴上了那个白面具,头套的透气性很好,应该说现实世界里根本就不可能有这种透气性的头套,但是这种视野被遮挡的感觉,让你很不自在,就好像……被禁锢在了这一套衣着之中。
而你,还要穿着这套衣服,在这古堡中度过三天时间。
穿戴好之后,小蜗给你发了一个号码牌,上面的数字是
1d12

无标题无名氏No.56541684

2023-03-31(五)17:02:14 ID: 26NXFoz (PO主)

“您是第2个到达这里的人,请您在大厅稍作等待。”
说完,她就退出了古堡。
而你,则走进了古堡大厅。
古堡的大厅空间倒是非常之大,几根大理石圆柱,撑起了整座古堡的二楼,正中是通向二楼的楼梯,在中间的平台处折向两边。
“你好。”大厅里已经有一个人,“我叫孙盛期,你是?”
“你好,我叫唐霆禹。”你发现自己说出来的话语调变得低沉了很多,听起来,就好像另一个人的声音。这也是面具的效果吗?看来想用音色来判断身份的想法是落空了。
你并不知道谁扮演谁,所以这样也不算是对身份,好在,性别还是可以区分的,多少也算是一点信息。
同时,你的脑海里也收到了对方发来的剧本信息:你好,我是来自第九影院的孙琦,请问阁下是?”
第九影院孙琦?没听说过,影院之间能合作的机会很少,一般也不会有影院没事就把自家的情报透给别人,所以除了那几个出名的,演员之间互相都不认识,也很正常。
你决定
1、 如实相告
2、 撒谎(指定内容)
3、 保密
4、 自定义

无标题无名氏No.56542188

2023-03-31(五)17:35:26 ID: 26NXFoz (PO主)

>>No.56542074
不针对剧本信息,也就是说剧本信息是可以发的( ゚ 3゚)

无标题无名氏No.56544218

2023-03-31(五)19:37:19 ID: 26NXFoz (PO主)

(;´Д`)请假三天

无标题无名氏No.56557614

2023-04-01(六)15:22:00 ID: 26NXFoz (PO主)

//( ゚ 3゚)小摸一下
“保密,另外,你最好也别暴露自己的身份。”你善意地提醒了对方一句,面具遮挡下,看不清对方的表情。
见你没有和他交流的意思,对方也是兴致缺缺耸了耸肩,没有自讨没趣。
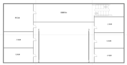
趁人都没来齐,你也是把古堡里到处跑了一遍,大致的结构如下:

无标题无名氏No.56557619

2023-04-01(六)15:22:18 ID: 26NXFoz (PO主)

分享图片

无标题无名氏No.56557622

2023-04-01(六)15:22:33 ID: 26NXFoz (PO主)

分享图片

无标题无名氏No.56557629

2023-04-01(六)15:23:05 ID: 26NXFoz (PO主)

//实际古堡里比这要复杂很多,但po毕竟不是专业的,大家凑合看吧(;´Д`)